Надставка для стола ДМ-1-013-02
-
Дополнительные
услуги -
Варианты
оплаты -
Гарантия
производителя -
Товар
сертифицирован -
Доставка по России
или самовывоз
ДМ1 – серия мебели не имеет аналогов в мире по своей технологии и свойствам используемых материалов. Данная серия идеально подходит для эксплуатации в помещениях с повышенной дезинфекционной обработкой и лабораториях любого профиля; она делается на базе травмобезопасного каркаса, выполненного из алюминиевого анодированного профиля, с замками, позволяющими вкладывать панели из вспененного полипропилена (они нужны, чтобы обеспечить мебели стопроцентную водо - и химостойкость)
| Конструкция | Стандартное исполнение |
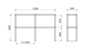
| Размеры |
|
| Допуски по габаритам | ±2 мм |
| Каркас | Травмобезопасный каркас из алюминиевого анодированного профиля с замками для герметичной вкладки панелей |
| Наполнение каркаса | Панели из трехслойного подвспененного полипропилена, что обеспечивает изделиям 100% водостойкость, химостойкость и долговечность |
| Соединительный элемент (замок) | Замок из ударопрочного пластика, является узловым элементом соединения алюминиевых профилей |
| Фасады | Из оцинкованной стали с полимерно-порошковым покрытием (цветовая гамма состоит из 12 цветов). Для дверок применяется 2 петли внутренние. |
| Полки | Распределенная нагрузка на полку до 30 кг |
| Цвет корпуса | Светло-серый. |
| Ручки | Алюминиевые, цвет - матовое серебро. |
| Прочие условия | Предназначены для установки на столешницу |
| Условия эксплуатации | Помещения с повышенной дезинфекционной обработкой. |
| Упаковка | "Стандарт", "Регион". |

Стоит посмотреть



Надставка для стола ДМ-2-013-02


