Пост ДМ-2-012-03
-
Дополнительные
услуги -
Варианты
оплаты -
Гарантия
производителя -
Товар
сертифицирован -
Доставка по России
или самовывоз
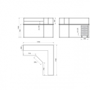
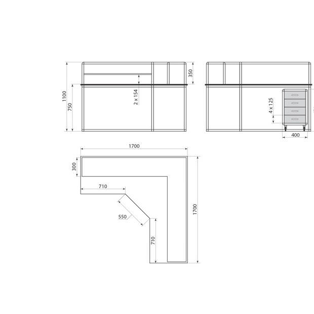
ДМ2 – универсальная серия, рассчитанная на эксплуатацию в любых помещениях: кабинетах общего приема, процедурных кабинетах, лабораториях; от серии ДМ-1 ее отличает использование в качестве наполнителя ламинированных панелей, наличие полок из (ЛДСП), механизма выдвижных ящиков.
| Конструкция | Стандартное исполнение |
| Размеры |
|
| Допуски по габаритам | ±2 мм |
| Каркас | Травмобезопасный каркас из алюминиевого анодированного профиля с замками для герметичной вкладки панелей |
| Наполнение каркаса | Панели из ЛДСП 16мм |
| Соединительный элемент (замок) | Замок из ударопрочного пластика, является узловым элементом соединения алюминиевых профилей |
| Столешница | Панель из ЛДСП 26мм |
| Фасады | Из оцинкованной стали с полимерно-порошковым покрытием (цветовая гамма состоит из 12 цветов). Для дверок применяется 2 петли внутренние. |
| Выдвижные ящики | Направляющие на нейлоновых роликах, с плавным самозакрыванием. Внутреннее пространство: глубина 430мм, ширина 281, 369, 427мм, кол-во ящиков в 1 тумбе: 1+дверка, 2+дверка, 3, 4шт. Динамическая нагрузка - до 20кг |
| Полки | Распределенная нагрузка на полку до 10 кг. |
| Цвет корпуса | Светло-серый. |
| Ручки | Алюминиевые, цвет - матовое серебро. |
| Опоры | Без опор |
| Условия эксплуатации | Использование в медицинских и общих помещениях |
| Упаковка | "Стандарт", "Регион". |

Стоит посмотреть



Пост ДМ-2-012-01
Пост ДМ-2-012-02
Пост ДМ-2-012-05



